The Work of "Renewal"
Surveys and Studies
advance of Urban Renewal Funds, 1960
Image 59391, Record Series 1627-04
The first step in securing federal monetary support for an urban renewal project was to apply for funds to conduct a survey of the proposed area, and to develop a comprehensive plan for the project. In August 1958, the Mayor, City Council, and SURE jointly announced that the first area for urban renewal study would be centered on two neighborhoods, Yesler and Atlantic. This area was selected first because it contained "extensive and varied types of blight as existed anywhere in the city," and because some community groups in the area, such as the Jackson Street Community Council and the Seattle Atlantic Street Center, were already active supporters of the city's urban renewal plans. In June 1959, the city applied for federal funds to survey and create a plan for the two neighborhoods. After modifying the defined project area as requested by the federal government, funds for the survey and planning were received in December of that year.
Studies evaluating the existence and spread of blight across the city continued, and additional survey and planning applications were submitted to the federal government as new potential project areas were identified. A penalty point system was devised for measuring the amount of blight in sections of the city. Divided into residential and non-residential sections, the penalty point system drew from 29 factors to evaluate and compare "urban blight." Intended as a method for equally comparing areas "quite dissimilar in nature," the point system would be used to aid in identifying which areas of the city should be targeted for urban renewal projects.
In 1962, Seattle applied for and received federal funds from the Housing and Home Finance Agency to conduct a Community Renewal Program (CRP), undertaking a comprehensive study to analyze urban blight in Seattle. Through field surveys, reports, and statistical data, the CRP analyzed topics such as land development, urban design, the housing market, family relocation, and the rehabilitation of blighted neighborhoods. The program was tasked with developing a ten-year urban renewal program for the city while studying blight in Seattle to understand "where it exists, where it is spreading, and what its underlying causes are."
showing distribution of dwelling units
below housing code standards, 1960
Map 1166, Record Series 1600-05
Projects
for a "Progress Report" campaign ad, 1959
Film clip from Item 510, Record Series 2613-09
Seattle's first urban renewal project was conceived as primarily a conservation project. The Cherry Hill urban renewal project, approved by City Council in March 1959, covered an area from Yesler Way to Cherry Street and 18th to 23rd Avenues. Cherry Hill was a non-federally funded project, meaning it was federally approved but did not receive federal monetary support. The program was intended to support residents in securing FHA assistance to finance renovations and rebuilding, making the homeowners compliant with the city's new minimum housing code.
Other urban renewal projects in the city were federally supported. Such projects were divided into two categories: Conventional projects, and Neighborhood Development projects (NDPs). The categories were based on how the projects were funded. For Conventional projects, the city applied for survey and planning funds for a proposed project, used the funds to prepare an urban renewal plan for the project area and then applied for funds to complete the entire project. NDPs were authorized by Congress in August 1968 and developed as a variation of the conventional urban renewal projects. Intended to be focused on rehabilitation, NDPs were funded on an annual basis, rather than for the amount of money necessary to complete the entire project. After submitting a plan for a proposed project, an application was made for one year's worth of funding with subsequent applications submitted each year to continue receiving support on an annual basis. This was done to avoid heavy, long-term commitment of federal funds.
Conventional projects in Seattle were:
- Yesler-Atlantic Neighborhood Improvement Project/YANIP (originally conceived as a conservation and rehabilitation-oriented project, it became a clearance and redevelopment project)
- Northlake Urban Renewal Project (clearance and redevelopment project)
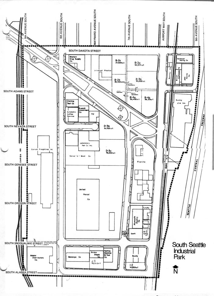
- South Seattle Redevelopment Project (clearance and redevelopment project)
- Pike Place Project (proposed clearance and redevelopment project)
Neighborhood Development projects:
- Northwest Leschi
- South Park
- Southwest Leschi
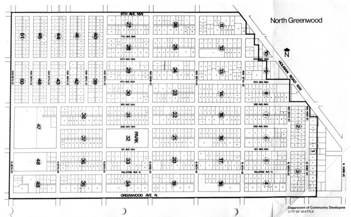
- North Greenwood
Plans for a proposed project in First Hill, adjacent to Seattle University, were abandoned in late 1963 due to the university's acquisition of most properties in the proposed project area.
Despite the early identification of neighborhoods and the adoption of urban renewal plans, delays caused by litigation, changes to project boundaries and priorities, and inadequate planning meant that most projects did not get underway until the mid- to late 1960s. However, work towards code enforcement began almost immediately in the Cherry Hill project area and in other areas throughout the city.
Code Enforcement
Seattle's first minimum housing code was passed with Ordinance 88069 in March 1959, establishing "minimum housing standards for the protection of the public health, safety, morals and the general welfare in buildings used for human habitation in the City of Seattle." A revised code with stronger rules and penalties was passed the following April. In addition to setting rules, the housing code authorized the City to require the repair, closure, or demolition of buildings found to be noncompliant. Described in the 1962 Workable Program as "the City's essential tool for the prevention of the spread of blight," code enforcement was a consistent element throughout urban renewal efforts in Seattle.
Code enforcement was not limited to defined urban renewal project areas. City-wide enforcement began on a spot basis in 1960, with Building Department inspectors investigating structures identified by police officers, or through citizen complaints, as appearing dilapidated. In 1967, a new ten-year "Systemic Citywide Housing Code Enforcement Program" was established, administered by the Building Department's Division of Housing Conservation and Building Abatement. The program's tagline was "To assure a decent home in a suitable living environment for every family." As part of the program, the city was divided into 20 Housing Code Enforcement Areas. Studies were conducted for targeted areas to estimate the total number of noncompliant residential units, and schedules were developed for enforcing compliance. Federal grants and loans designed to assist homeowners with rehabilitation were limited and unreliable. Even with a federal loan, owners in project areas often needed additional financing to cover the entire expense of repairs needed. As such areas were determined to be "high risk" by mortgage appraisers, obtaining financing from private lenders was difficult, if not impossible.
A former city building inspector who spoke at a 1972 public hearing about housing conditions in the Mann Minor neighborhood shared some words of caution with residents who were lobbying the city for urban renewal funding. Before resigning from his position with the city, he had been assigned to inspect homes in the Cherry Hill urban renewal area and tasked with enforcing the city's housing code. "The reason why I'd like to talk particularly about this is because of the many problems which developed out of that code enforcement," he said. He explained how he'd witnessed residents losing their homes as the loan financing they had been promised had failed to materialize. "I am almost certain that many of the individuals who now live in the Mann Minor community, who are living in occupied structures, if they were to get the housing inspectors to come through those structures where they are now living, they would not meet code standards. And if they are not able to come up with sometimes $5,000 or $10,000 to make those kinds of repairs, they're going to be put out of those homes and will subsequently lose them..."
to a degree warranting clearance," 1965
Image 77141, Record Series 1802-0P
By July 1968, over 1,000 structures had been razed due to code enforcement. Under state law, relocation expenses were required for those displaced by eminent domain, yet those displaced by code enforcement did not qualify for the assistance. "The major problem in code enforcement moves is that we have no money to help pay relocation expenses, advance rent and utility deposits, etc." stated the 1968-69 Workable Program. It also reported that the city's code enforcement division had been responsible for displacing "far more people than any other activity at the present time," and that "To the best of our knowledge all of the families and individuals displaced have been satisfactorily rehoused." However, the plan admitted that many residents preferred to relocate on their own, leaving the city with no record of their move.




